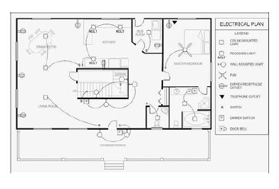
Electrical Design, Drawing & Installation

All Types of Design & Drawing for Residential, Commercial and Factory by BNBC, BS and NFPA Standard.
Approval after design & Drawing
Installation Electric Solution for Residential, Commercial and Factory